Bilocale in vendita

Torino, Via Giacinto Pacchiotti - Parella
€ 89.000
2 locali 2 locali
48 Mq 48 Mq
1 bagno 1 bagno

Bilocale in vendita

Torino, Via Giacinto Pacchiotti - Parella

Descrizione annuncio

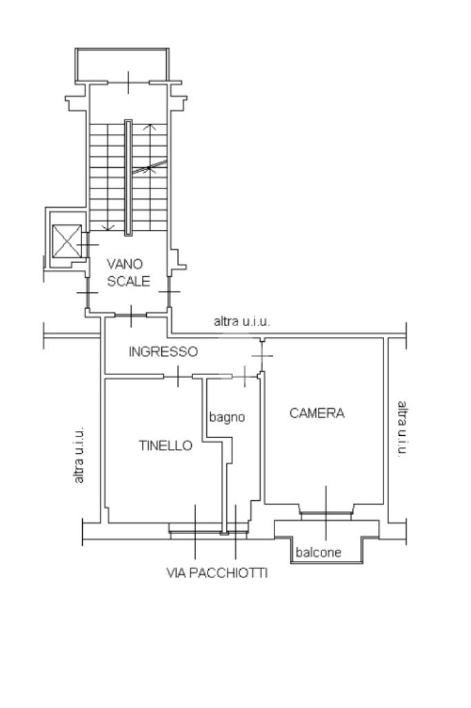
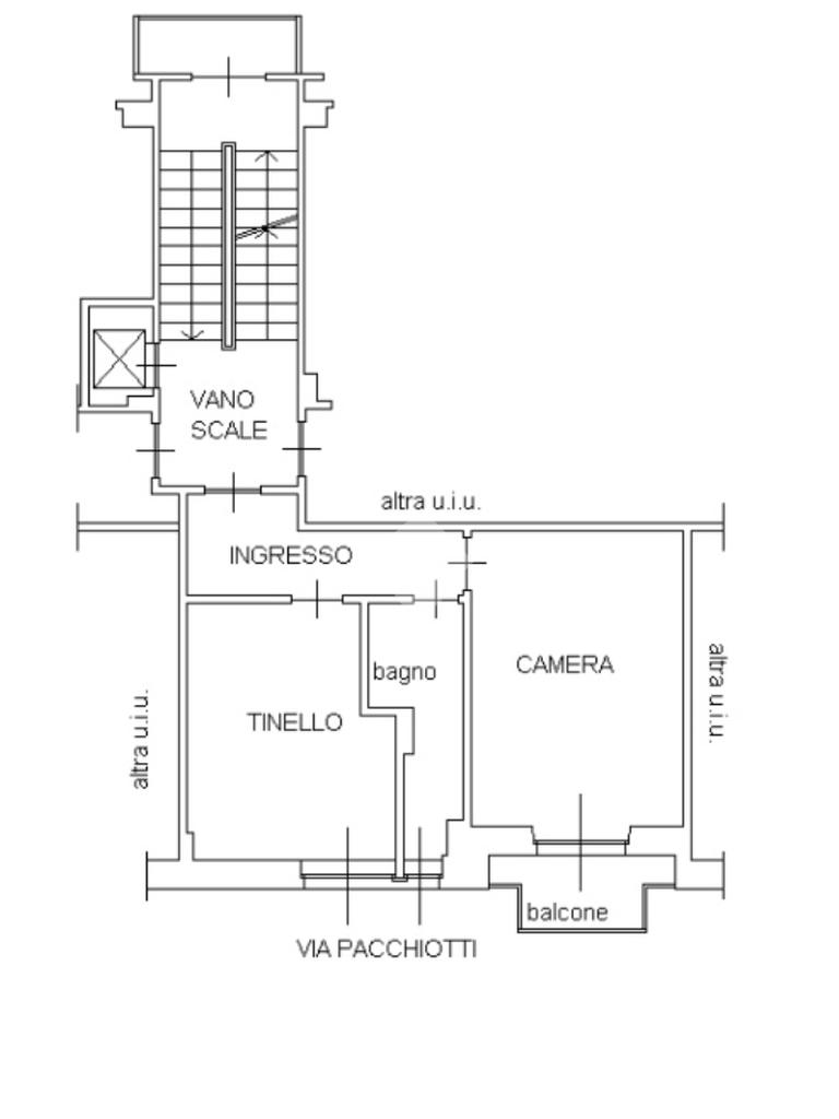
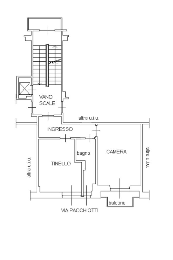
In zona Parella, più precisamente in Via Pacchiotti, posizione strategica per chi desidera muoversi a piedi senza l'utilizzo dell'auto. Possiamo raggiungere la metropolitana a soli 5 minuti, il parco della tesoriera a 7 minuti, supermercati nel raggio di 5 minuti e molto altro ancora. Lo stabile è stato realizzato negli anni '60 e si presenta in ottime condizioni ed è dotato di ascensore interno. L'appartamento si trova in condizioni originali, quindi completamente da ristrutturare, è a un piano medio ed ha un'unica esposizione sulla Via. L'accesso all'appartamento è sul disimpegno che divide i vari ambienti. La cucina è abitabile e ben illuminata da un'ampia finestra. Il bagno, anch'esso finestrato è completo di tutti i sanitari e boiler elettrico per l'acqua calda sanitaria. La camera da letto è matrimoniale e ha sfogo sull'unico balcone presente. Completa la proprietà la cantina la piano interrato. L'appartamento è ideale come investimento grazie alle basse spese di gestione. Il riscaldamento è centralizzato.

Mostra tutto

Nelle vicinanze

Trasporto pubblico Trasporto pubblico
Monte Grappa
Monte Grappa
370 m
Pozzo Strada
Pozzo Strada
500 m
stazione di Torino Porta Susa
stazione di Torino Porta Susa
2,6 Km
stazione di Grugliasco
stazione di Grugliasco
2,9 Km
Campanella Capolinea
Campanella Capolinea
480 m
Ricariche auto elettriche Ricariche auto elettriche
Bluetorino Fidia
1,0 Km
Bluetorino Risorgimento
1,5 Km
Bluetorino Porta Susa FS
2,5 Km
evway TO Porta Susa
2,6 Km
Bluetorino Politecnico
2,9 Km
Scuole Scuole
Scuola primaria "Duca d'Aosta"
190 m
Scuola dell'Infanzia "Anna Maria Cavaglià"
210 m
Scuola Media "Albert Schweitzer"
250 m
Scuola dell'Infanzia "Archimede"
480 m
Scuola Media "Dante Alighieri"
490 m
Farmacia Farmacia
Farmacia Comunale
130 m
Farmacia Tesoriera
310 m
Farmacia Parella
340 m
Farmacia Montegrappa
390 m
Castaldi
490 m
Ospedali Ospedali
Ospedale Martini - Emergency
1,4 Km
Ospedali
1,4 Km
Ospedale Martini
1,4 Km
Ospedale Maria Vittoria
1,9 Km
Clinica della Memoria "Giovanni Paolo II"
2,3 Km
Supermercati Supermercati
U2
250 m
Crai
310 m
Mercatò
390 m
Pam Panorama
400 m
Borello Supermercati
530 m
Negozi Negozi
Panetteria Chiantia Giusi
50 m
Il Salotto del Gusto
50 m
Panificio Jole
370 m
Panificio Cirasola
620 m
La Briosa
770 m
Bar Bar
Caffetteria Ribes
290 m
Sole
370 m
Il chiosco della Tesoriera
470 m
London Bar
520 m
Bar
530 m
Ristoranti Ristoranti
Mexico 70
250 m
Greek Passion
410 m
Trattoria Il Tempo Ritrovato
410 m
Bai Wei
520 m
Pizza Flash
600 m
Mostra tutto

Caratteristiche

Rif.:
61146429
Piano:
Medio di 6 con ascensore
Totale piani:
6
Balconi:
1
Camere da letto:
1
Arredamento:
Assente
Mostra tutto
Prezzo Prezzo
€ 89.000
Rata mutuo Rata mutuo
€ 420 / mese
Spese annue Spese annue
€ 600
Proponi il tuo prezzoProponi il tuo prezzo

Classe Energetica

F
F
F
F
F
F
F
F
F
EP globale non rinnovabile:
168.19 kW h/m² anno
EP globale rinnovabile:
9.56 kW h/m² anno
EP invernale del fabbricato:
EP estiva del fabbricato:
Anno di costruzione:
1960
Riscaldamento:
Centralizzato
Tipo impianto:
A radiatori
Tipo alimentazione:
Metano

Ti interessa visionare l'immobile?

Fissa un appuntamento  Fissa un appuntamento

Richiedi informazioni

Clicca su Leggi per aprire l'informativa
* Questi campi sono obbligatori

Calcola il tuo mutuo

Semplice e senza impegno
Anticipo

( % )
Mutuo

( % )

pochi semplici passi

inserisci i tuoi dati
Questionario completato
Grazie per aver richiesto un appuntamento senza impegno con un nostro Consulente del Credito e Assicurativo.

Hai inserito correttamente tutti i dati necessari e a breve riceverai una e-mail con un link da convalidare per inviare i tuoi dati.
Affiliato
Parella Immobiliare Sas
Via Nicomede Bianchi, 66/D 10122 Torino (TO)

Il nostro staff


  • Virginia Bolzoni
    Collaboratrice

  • Gabriele Dragone
    Collaboratore

  • Alessio Piazza
    Collaboratore

  • Mara Orru'
    Coordinatrice

  • Daniele Piazza
    Affiliato
Via Nicomede Bianchi, 66/D 10122 Torino (TO)
Zona: Parella-Monte Grappa-Telesio
Mostra su mappa
Orari: Dal lunedì al venerdì 8:45 - 12:30/15:00 - 20:00 sabato 8:45 - 12:30/14:30 - 17:00
Affiliato
Parella Immobiliare Sas
Via Nicomede Bianchi, 66/D 10122 Torino (TO)

2025 Tecnocasa Franchising S.p.A. - P. IVA 08365160152 - Via Monte Bianco 60/A 20089 Rozzano (MI). Ogni agenzia ha un proprio titolare ed è autonoma. Privacy policy | Policy utilizzo | Cookie policy